Lavakatu 8 A 59

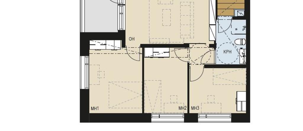
4h+kt+s 86,0 m2

(Ownership type) Hitas

Pasila, Lavakatu 8, 00240 Helsinki

Asunnon tiedot

Talon kuva: Arnodela Chapelle

 

Muuttovalmiita asuntoja vapaana Postipuistossa. Asunnot ovat valmistuneet 28.4.2023. Varauksen vapaana olevaan tai kiinnostuksen varattuna olevaan asuntoon voi tehdä sähköpostitse ulla-mari.nieminen@hel.fi ilmoittamalla yhteystiedot sekä syntymäajan. Varauspyyntö käsitellään mahdollisimman pian. Vapaat huoneistot ovat ostettavissa ottaen huomioon Hitas-ohjeet, kts kohteen hakuohje. 

Postipuistosta kasvaa sujuvan ja yhteisöllisen elämisen asuinalue lähellä monipuolistuvia palveluita, sujuvia liikenneyhteyksiä ja vehreää luontoa. Postipuistoon on tulossa mm. päivittäistavarakauppa, kivijalkaliikkeitä, päiväkoteja ja koulu. Muutaman kilometrin säteellä sijaitsevat Käpylän ja Pasilan palvelut, kuten kauppakeskus Tripla ja Pasilan kirjasto. Käpylän ja Ilmalan asemat ovat näppärästi kävelymatkan päässä. Postipuiston omat puistot ja viereinen Keskuspuisto takaavat rikkaat virkistys- ja ulkoilumahdollisuudet.

Asunto oy Helsingin Kollikallio on savuton ja esteetön kohde. Se on suunniteltu RTS-ympäristöluokituksen periaatteiden mukaisesti ja tavoitteena rakentamisvaiheessa on neljän tähden luokitus (****). Rakennuksella on energiatehokkuusluokka A, joten ostajalla on mahdollisuus kysyä pankistaan vihreää asuntolainaa.

Tontti on vuokrattu Helsingin kaupungilta. 

Helsingin kaupungille jäävä Hitas-asunto on D128. 

 

Asuinalue: Pasila/Pohjois-Pasila

Talotyyppi: Kerrostalo

Energialuokka: A

Esteettömyys: Kyllä

Savuttomuus: Kyllä

Huoneistokohtaisilla sivuilla ei tällä hetkellä näy hoito- ja rahoitusvastikkeiden senttejä. Katso oikeat summat RS-hinnastosta.

Yksityiskohdat

  • Kaupunginosa Pasila

  • Rakennustyyppi Kerrostalo

  • Huoneet 4h+kt+s

  • Pinta-ala (m2) 86,0

  • Kerros 13

  • Myyntihinta 252 333,00€

  • Yhtiölainaosuus 140 533,00€

  • Velaton hinta 392 866,00€

  • Hoitovastike 579,55€

  • Rahoitusvastike 346,00€

  • Energialuokka A

  • Tontin omistus Vuokra, Helsingin kaupunki

  • Muutostyöt 366,00€

  • Vesimaksu 20,00€ / kk

  • Vesimaksun selitys Ennakkomaksu, tasaus käytön mukaan.

  • Pysäköintivastike 60,00€ / kk

  • Pysäköintivastikkeen selitys hallipaikka

  • Other fees Muutostyönä asunnossa on keittiön työtaso, keittiön hana ja saunan lasiovi. Ostaja vastaa muutostyön kustannuksesta.