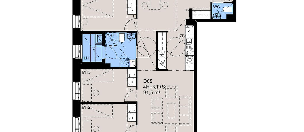
Jokipoikasenkaari 4 D 73

4h+kt+s 91,0 m2

(Ownership type) Hitas

Tapanila, Jokipoikasenkaari 4, 00730 Helsinki

Asunnon tiedot

Yleisesittely  on sunnuntaina 1.3 klo 12-13:30.  Tapaaminen asunnossa B21.

KOHDE ON VALMISTUNUT

KOHTEESSA ON VAPAITA ASUNTOJA!

Varauksen sekä esittelypyynnön voit tehdä lähettämällä viestiä osoitteeseen gul.shoaib@hel.fi

Tapanilan koillisosaan, Tapanilan, Puistolan ja Malmin lentokenttäalueen risteykseen on valmistunut Asunto Oy Helsingin Joutsenpuisto, viisikerroksinen asuinkerrostalo yhtenäisen sisäpihan suojaan. Tarjolla Puolihitas-omistusasuntoja erilaisiin elämäntilanteisiin, yksiöistä aina neljän huoneen perheasuntoihin.

Vanha huvila-alue Tapanila kuuluu Tapaninkylän kaupunginosaan, joka liitettiin Helsingin kaupunkiin vuoden 1946 suuressa alueliitoksessa ja muodostettiin tuolloin erilliseksi kaupunginosaksi ja jaettiin Tapanilan ja Tapaninvainion osa-alueisiin vuonna 1959. Tapanila reunustaa päärataa sen molemmin puolin. Radan länsipuolella olevista omakotitaloista suuri osa on vanhoja jo vuosisadan alussa rakennettuja, kun taas itäisellä puolella on rivitaloja ja pienkerrostaloja sekä nyt rakentuva uudempi asuinalue, johon myös Asunto Oy Helsingin Joutsenpuisto sijoittuu.

Tapanila on pyöräilijän paratiisi. Pohjoisbaana rakentuu hyvää vauhtia ja tulee valmistuttuaan tarjoamaan näppärän reitin Käpylästä Vantaan rajalle. Nopeasti Helsingin keskustaan kulkee tietysti myös junalla, jonne Jokipoikasenkaarelta on matkaa alle 400 metriä. Luonnossa mielellään liikkuvalle alue saattaa olla erityisen mieleinen, sillä lähellä sijaitsee mm. Fallkullan puisto, ja Malmin lentokentän ympäristöä kiertää ulkoilureitti, jossa voi seurata luonnon monimuotoisuutta, mutta myös harrastaa liikuntaa raittiissa ilmassa sekä reitin varrella sijaitsevalla ulkoliikuntapaikalla.

Alueella on runsaasti aktiivista yhteistä toimintaa. Mm. Tapanila-Seura järjestää vuosittain useita tapahtumia, joiden tarkoituksena on koota alueen ihmiset yhteen koko perheen voimin. Yhteistä tekemistä järjestävät myös Tapanilan kirjasto, Tapanilan Kylätilayhdistys Tapanilan vanhalla alakoululla ja runsaan valikoiman erilaisia liikuntaharrastusmahdollisuuksia Tapanilan Erä.

Tapanilan alueella on useampia päiväkoteja, Tapanilan ala-aste, Hiidenkiven peruskoulu ja Helsingin Medialukio. Tapanilasta löytyy myös ruokakauppoja, R-kioski, ravintoloita, partureita, kampaamoja, erilaisia hyvinvointipalveluja tarjoavia yrittäjiä, lahjatavarakauppoja sekä leipomo-kahvila Rönttösrouva.

Asunto Oy Helsingin Joutsenpuisto on kolmen rakennuksen puolihitas-omistusasuntokohde, joissa on viisi kerrosta sekä niiden päällä kattokerros. Hissillisiä porrashuoneita on yhtiössä kuusi kappaletta. Kaikkiin porrashuoneisiin on esteetön sisäänkäynti korttelin sisäpihalta, katuihin rajautuvin porrashuoneisiin myös kadun puolelta. Asuntoja on yhteensä 109 kpl ja ne ovat kooltaan 39,5-98,5 m2. Jokaiseen asuntoon kuuluu asuntokohtainen esteetön lasitettu parveke. Osassa asuntoja on huoneistokohtainen sauna. Jokaiselle asunnolle kuuluu lämmin irtaimistovarasto. Kaikkiin asuntoihin on esteetön kulku ja ne on suunniteltu esteettömiksi. Pesula, kuivaushuoneet, irtaimistovarastot, väestönsuoja (normaaliajan käyttö irtaimistovarasto), lastenvaunuvarastot, ulkoiluvälinevarastot ja kerhotilat sijaitsevat 1. kerroksessa sekä Jokipoikasenkaaren varteen sijoittuvan rakennuksen kattokerroksessa. Kerhotilaa on myös kattokerroksessa talosaunojen yhteydessä.

Asukkaiden käytössä on 59 autopaikkaa. Autopaikat sijaitsevat LPA-tontilla (tontti 39282/1) kolmen korttelin yhtiöiden yhteiskäyttöisessä, avoimessa, lämmittämättömässä pysäköintilaitoksessa. Autopaikat varustetaan lämmityspistorasioilla. Pysäköintilaitoksessa yhteensä 167 autopaikasta 16 soveltuu sähköautojen lataukseen ja viisi on mitoitettu liikuntaesteisille.

Rakennettava yhtiö on savuton.

Asuinalue: Tapanila

Talotyyppi: Kerrostalo

Esteettömyys: Kaikkiin asuntoihin on esteetön kulku ja ne on suunniteltu esteettömiksi.

Savuttomuus: Kyllä

Huoneistokohtaisilla sivuilla ei tällä hetkellä näy hoito- ja rahoitusvastikkeiden senttejä. Katso oikeat summat RS-hinnastosta.

 

Sisäkuvat: Kimmo Räisänen

Ota yhteyttä gul.shoaib@hel.fi

Yksityiskohdat

  • Kaupunginosa Tapanila

  • Rakennustyyppi Kerrostalo

  • Huoneet 4h+kt+s

  • Pinta-ala (m2) 91,0

  • Kerros 5

  • Myyntihinta 254 940,00€

  • Yhtiölainaosuus 164 939,00€

  • Velaton hinta 419 879,00€

  • Hoitovastike 571,88€

  • Rahoitusvastike 462,08€

  • Tontin omistus Vuokra, Helsingin kaupunki