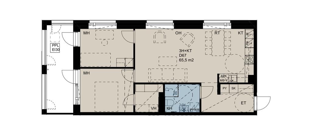
Maunulantie 21, Maunulanpolku 1 D67

3H+KT 65,5 m2

(Ownership type) Hitas

Maunula, Maunulantie 21, Maunulanpolku 1, 00630 Helsinki

Asunnon tiedot

Hakuaika on päättynyt. Arvonta suoritettiin torstaina 18.12.2025.

Varauksen vapaana olevaan asuntoon voi tehdä ainoastaan sähköpostitse lauraelina.vilhonen@hel.fi ilmoittamalla hakijoiden yhteystiedot (nimi, osoite, puhelinnumero, sähköpostiosoite) sekä syntymäajat ja varattavan huoneiston numero. Varauksen voi tehdä vain yhteen asuntoon kerrallaan.  Varauspyynnöt käsitellään saapumisjärjestyksessä. Vapaat huoneistot ovat haettavissa ottaen huomioon Hitas-ohjeet, kts. kohteen hakuohje. 

Osa materiaalivalinta-aikataulusta on jo umpeutunut. Myymättömiin huoneistoihin arkkitehti on tehnyt materiaalivalinnat.

D-Rappu umpeutunut
A-Rappu umpeutunut
B-Rappu Materiaalivalinnat Vko 20 13.5.2026
C-Rappu Yksilölliset muutostyöt Vko 20 13.5.2026 Materiaalivalinnat Vko 23 5.6.2026

Maunula on loistava asuinalue ihmiselle, joka arvostaa hyviä liikenneyhteyksiä, kyläyhteisömäistä asuinaluetta ja metsäisen luonnon rauhaa. Asunto Oy Helsingin Syysviljaan valmistuu laaja kirjo erikokoisia asuntoja yksiöistä viiden huoneen perheasuntoihin. Puolihitas-omistusasuntoja osaksi laajempaa korttelikokonaisuutta.

Puistojen ja metsien ympäröimä Maunulan alue liitettiin Helsinkiin suuressa alueliitoksessa 1946. Maunulaksi alue nimettiin jo vuonna 1945, kun kaupunki päätti rakennuttaa uuden asuinalueen sotien jälkeistä asuntopulaa helpottamaan. Tuolloin käynnistyi myös asemakaavoitus liitosalueilla ja Maunulankin ensimmäinen asemakaava laadittiin. Maunulan asuntoalue rakennettiin pitkälti 1950-luvulla. Saman vuosikymmen aikana rakennettiin alueelle myös Maunulan päiväkoti, Maunulan ala-aste ja silloinen oppikoulu, nykyinen Maunulan yhteiskoulu. Maunulasta katsottuna Pirkkolantien toisella puolella sijaitsevat Pirkkolan alueen viehättävät ruotsalaistalot, joita alettiin rakentaa jo 1940-luvun alussa.

Maunulanpuisto, joka on osa keskuspuistoa, sijaitsee aivan Maunulan kyljessä. Keskuspuisto on yli kymmenen kilometriä pitkä ja kymmenen hehtaarin laajuinen alue keskellä Helsinkiä. Tällä vehreällä, osin suojellulla ja luonnonmetsäisellä alueella on mahdollisuus oleskella omissa ajatuksissaan, seurailla lintuja, harrastaa patikointia tai vaikka pyöräillä töihin, aistia aamun raikkaudesta tai illan rauhasta.

Maunula on monipuolisten palvelujen, kattavien ratikka- ja bussiyhteyksien sekä sujuvien pyörä- ja kävelyreittien alue. Asunto Oy Helsingin Syysviljan läheisyydestä kulkee pikaratikkalinja, josta on suora reitti Espooseen ja Itä-Helsinkiin. Ruokakauppaan, apteekkiin, Asukastalo Saunabaariin ja Maunula-talolle on kävelymatka. Maunulan liikuntahalli sijaitsee ala-asteen vieressä ja Pirkkolantien toisella puolella on upea Pirkkolan liikuntapuisto sekä lasten hiekkapohjainen uimalammikko Plotti.

Asunto Oy Helsingin Syysvilja sijaitsee Maunulassa kulttuurihistoriallisesti arvokkaalla alueella. Asuinrakennukset ovat 4,5-5 kerrosta korkeita Puolihitas-asuinkerrostaloja. Hissillisiä porrashuoneita on yhteensä 4. Rakennuksiin on esteetön sisäänkäynti kadulta ja/tai sisäpihalta. Asuntoja on yhtiössä yhteensä 80 kpl ja ne ovat kooltaan 32,0-102,0 m2. Jokaiseen asuntoon kuuluu asuntokohtainen lasitettu parveke, joka on varustettavissa esteettömäksi terassilaudoituksella asukkaan toimesta. Osassa asuntoja on huoneistokohtainen sauna. Jokaiselle asunnolle kuuluu alimmassa kerroksessa sijaitseva lämmin irtaimistovarasto. Kaikki asunnot on suunniteltu esteettömiksi ja niihin on autohallista ja tontin rajalta esteetön kulku. Kellaritiloissa tai maantasokerroksessa sijaitsevat pesula, kuivaushuoneet, irtaimistovarastot, väestönsuoja, lastenvaunuvarastot, ulkoiluvälinevarastot, kerhotilat ja talosaunat.

Taloyhtiön autopaikat, 44 kpl, sijaitsevat tontin yhteiskäyttöisessä kolmikerroksisessa, kylmässä pysäköintilaitoksessa. Autopaikoista 2 on mitoitettu liikuntaesteisille ja 16 kpl toteutetaan sähköauton latauspaikkoina.

Rakennettava yhtiö on savuton.

Asuntojen arvioitu valmistumisaika on 8/2027–10/2027.

Asuinalue: Maunula

Talotyyppi: Kerrostalo

Kaikki asunnot on suunniteltu esteettömiksi ja niihin on autohallista ja tontin rajalta esteetön kulku. Lasitetut parvekkeet on mahdollista varustaa esteettömiksi terassilaudoituksella asukkaan toimesta.

Savuttomuus: Kyllä

Ota yhteyttä:

Helsingin kaupunki
Asuntotuotanto
Lauraelina Vilhonen
lauraelina.vilhonen@hel.fi
(09) 310 42061

Huoneistokohtaisilla sivuilla ei tällä hetkellä näy hoito- ja rahoitusvastikkeiden senttejä. Katso oikeat summat RS-hinnastosta.

Yksityiskohdat

  • Kaupunginosa Maunula

  • Huoneet 3H+KT

  • Pinta-ala (m2) 65,5

  • Kerros 1

  • Myyntihinta 146 672,00€

  • Yhtiölainaosuus 110 707,00€

  • Velaton hinta 257 379,00€

  • Hoitovastike 551,51€

  • Rahoitusvastike 542,34€