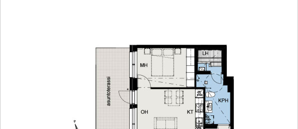
Muusanpolku 1 B23

2h+kt+s 49,0 m2

(Ownership type) Hitas

Talinranta, Muusanpolku 1, 00350 Helsinki

Asunnon tiedot

Löydä oma kotisi! 

Vapaat asunnot :lähetä sähköpostilla ilmoitus , että haluat varata asunnon, osoitteeseen ulla-mari.nieminen@hel.fi.

 

Muuttamaan pääset vaikka heti


Hitas-ohjeistus koskee niin kaupunkia rakennuttajana kuin kaikkia muitakin Hitas-rakennuttajia. 

Merelliseen Talinrantaan Munkkiniemeen valmistui Asunto Oy Helsingin Muusanpolku. Vapaarahoitteinen Hitas-omistusasuntokohde muodostuu kahdesta 5-kerroksisesta ja yhdestä 6-kerroksisesta kerrostalosta. Asuntoja on yhteensä 66 kpl ja ne ovat kooltaan 33,5–108,0 m².

Kohteessa on maalämpö.

Autopaikat (46 kpl) sijaitsevat kylmässä autohallissa pihakannen alla. Autopaikat ovat nimeämättömiä.

Maantasoasunnoissa on asuntopihat, yksiöissä on lasittamattomat parvekkeet ja muihin asuntoihin kuuluu esteettömyyden mahdollistava lasitettu parveke. Jokaisella asunnolla on rakennuksen 1. kerroksessa sijaitseva lämmin irtaimistovarasto. Osassa asunnoissa on myös huoneistokohtainen sauna.

Iso Huopalahden rannalla sijaitsevaa Talinrantaa ympäröivät laajat puisto- ja viheralueet sekä kävely- ja pyöräily-yhteydet. Suora bussilinja vie Kamppiin noin puolessa tunnissa.

Lähistöllä on mitä parhaimmat virkistys- ja liikuntamahdollisuudet sisällä ja ulkona ympäri vuoden. Lähellä oleva liikuntapuisto, urheiluhallit ja Talin huippu mahdollistavat moniin lajeihin, kuten jalkapalloon, tennikseen, keilaamiseen ja golfiin tutustumisen ja harrastamisen.

Asunto oy Helsingin Muusanpolku on savuton ja esteetön kohde. Tontti on vuokrattu Helsingin kaupungilta. A2018 energialuokka.

Huoneistokohtaisilla sivuilla ei tällä hetkellä näy hoito- ja rahoitusvastikkeiden senttejä. Katso oikeat summat RS-hinnastosta.

Yksityiskohdat

  • Kaupunginosa Talinranta

  • Rakennustyyppi Kerrostalo

  • Huoneet 2h+kt+s

  • Pinta-ala (m2) 49,0

  • Kerros 2

  • Myyntihinta 174 950,00€

  • Yhtiölainaosuus 108 847,00€

  • Velaton hinta 283 797,00€

  • Hoitovastike 321,75€

  • Rahoitusvastike 670,73€

  • Energialuokka A

  • Tontin omistus Vuokra, Helsingin kaupunki

  • Vesimaksu 20,00€ / kk

  • Pysäköintivastike 70,00€ / kk