Kiribatinkatu 2 A9

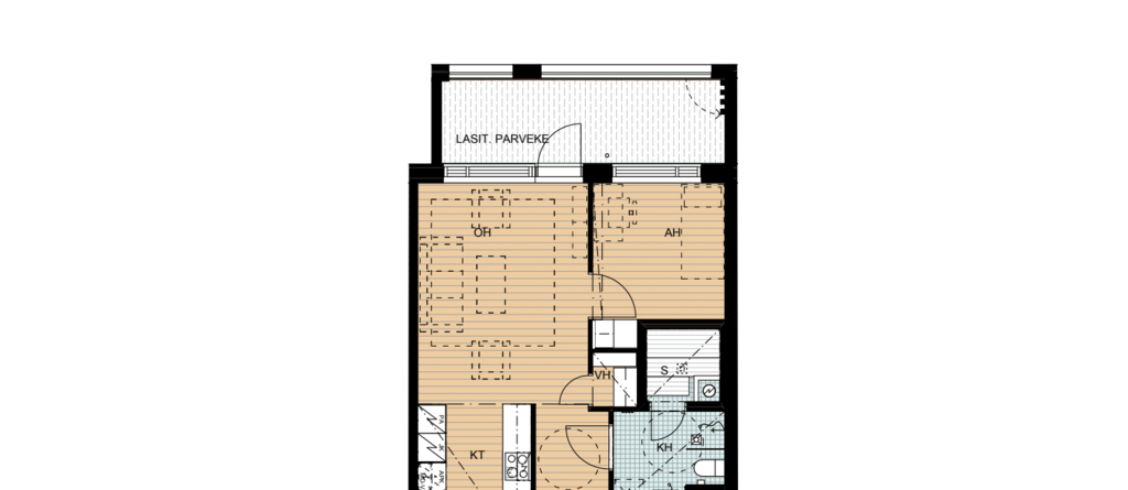
3H+KT+S 72,5 m2

(Ownership type) Hitas

Jätkäsaari, Kiribatinkatu 2, 00220 Helsinki

Asunnon tiedot

Vapaat asunnot :lähetä sähköpostilla ilmoitus , että haluat varata asunnon, osoitteeseen gul.shoaib@hel.fi.

Muuttamaan pääset vaikka heti

Sivuilla nyt nähtävillä liitteissä kohteen materiaaleista tietoa ja diasarja, jossa kuvaus myynnin vaiheista. 

Huom! Arvonlisäverokanta on korottui 1.9.2024 alkaen. Tämä vaikutti hiukan kohteen urakkahintaan ja sitä kautta myös yhtiölainan osuuteen asunnoissa. Vaikutus on vähäinen.

Keskimäärin vaikutus n.10,00/m2.

Tässä kohteessa vielä edullisempi tontinvuokra.

Kauppakirja puhuttuna tästä linkistä: 

https://www.youtube.com/watch?v=juffAd8L1DI&t

 

Hyvien raitiotieliikenteen kulkuyhteyksien sekä kehittyvien palvelujen tuntumaan rakennettava.
Asunto Oy Helsingin Atolli tarjoaa vapaarahoitteisia kerrostalo Hitas-asuntoja 62 kpl, asuntokoot 33,0-103,5 m2.

Jätkäsaari on kaupunginosa, joka palvelee monipuolisesti eri asumistarpeita.
Kohteen jokaiseen asuntoon kuuluu asuntokohtainen esteettömyyden mahdollistava lasitettu parveke.

Osalla maantasoasuntoja on pieni piha. Osassa asuntoja on huoneistokohtainen sauna.

Yhtiö liitetään kaukolämpöön , lämmitysmuotona on vesikiertoinen lattialämmitys.

Kohteen energialuokka on A 2018.

Kuvat: Kimmo Räisänen

Yhteydenotot:

gul.shoaib@hel.fi(Linkki avaa oletus sähköpostiohjelmasi)

Huoneistokohtaisilla sivuilla ei tällä hetkellä näy hoito- ja rahoitusvastikkeiden senttejä. Katso oikeat summat RS-hinnastosta.

Ota yhteyttä gul.shoaib@hel.fi

Yksityiskohdat

  • Kaupunginosa Jätkäsaari

  • Rakennustyyppi Kerrostalo

  • Huoneet 3H+KT+S

  • Pinta-ala (m2) 72,5

  • Kerros 3

  • Myyntihinta 232 036,00€

  • Yhtiölainaosuus 160 801,00€

  • Velaton hinta 392 837,00€

  • Hoitovastike 587,00€

  • Rahoitusvastike 1 131,00€

  • Energialuokka A

  • Tontin omistus Vuokra, Helsingin kaupunki