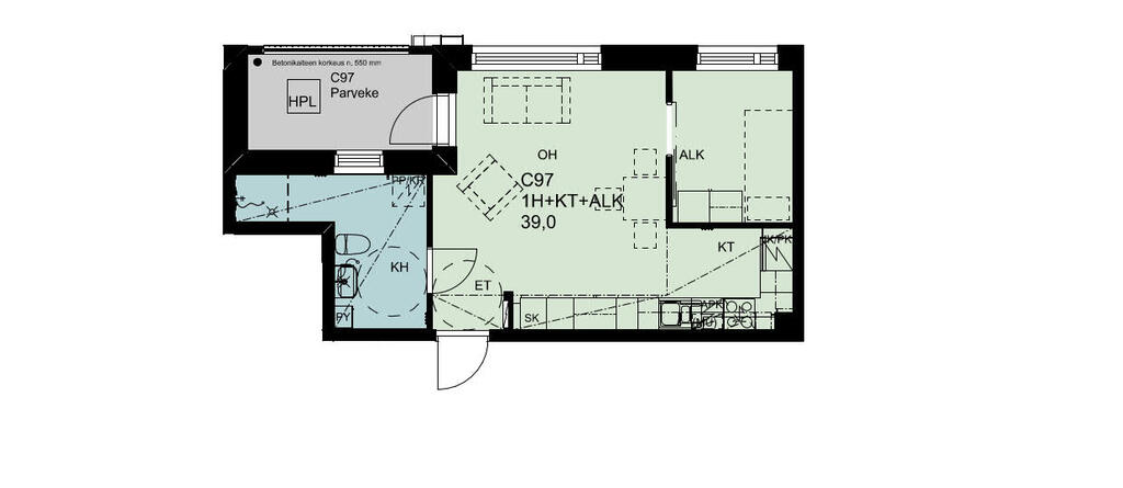
Länsisatamankatu 41 C131

1H+KT+ALK 39,0 m2

(Ownership type) Hitas

Jätkäsaari, Länsisatamankatu 41, 00220 Helsinki

Asunnon tiedot

Kohteessa vielä vapaita asuntoja. Arvonnan jälkeen vapaaksi jääneen asunnon voi varata lähettämällä sähköpostin / viestin asunnon kohdalta. Vapaa asunto varataan ensimmäiselle yhteydenottajalle. 

Asuntojen valmistumisaika on 12.12.2025

Asunnoissa A64, D150, E172 ja E199 on vakiomateriaaleista poikkeavat materiaalit. 

Huom! Arvonlisäverokanta on korottunut 1.9.2024 alkaen. Tämä on nyt päivitetty asuntojen hintoihin ja sivulta löytyvään hinnastoon. Korotus kohdistui yhtiölainaosuuteen eikä vaikuttanut rakennusaikana maksettavaan myyntihintaan.

Asunto Oy Helsingin Ahdinlaituri sijaitsee Jätkäsaaressa, Länsisatamankadun ja Hyväntoivonpuiston välisessä korttelissa. Yhtiö on vapaarahoitteinen Hitas-omistusasuntokohde. Yhtiö muodostuu kolmesta 5-15 kerroksisesta kerrostalosta, joissa on viisi hissein varustettua porrashuonetta. Yhtiön hallintaan jää myös neljä liiketilaa.

Jätkäsaari on urbaani asuinalue kantakaupungin kupeessa. Alueelta on erinomaiset julkiset ja kevyen liikenteen yhteydet, ja raitiovaunupysäkit sijaitsevat lähellä kotia. Hyväntoivonpuiston, liikuntapuiston ja uimahallin ansiosta harrastus- ja liikkumismahdollisuudet tulevat alueella olemaan loistavat. Kaupunginosan viihtyisyyttä lisää julkinen taide kotikulmien kaduilla, seinissä ja silloissa. 

Jokaiselle asunnolle on varattu yhtiön tiloissa sijaitseva oma lämmin irtaimistovarasto. Irtaimistovarasto ei välttämättä sijaitse samassa rapussa kuin asunto.

Yhtiölle on varattu korttelin pohjoispuolelle sijoittuvasta pysäköintitalosta 120 autopaikkaa joista 118 on varattu asukkaiden käyttöön ja 2 yhtiöön sijoittuville liiketiloille. Autopaikat jaetaan valmistumisen yhteydessä isännöitsijän toimesta. Mikäli autopaikan hakijoita on enemmän kuin autopaikkoja, isännöitsijä arpoo autopaikan saajat.

Tontinvuokravastikkeessa on laskettu alennus vuodelle 2026 ja se tulee sen jälkeen nousemaan n.1€/neliö. Vastaavasti kun yhtiön liiketilat vuokrataan, niistä saatu vuokratuotto tulee laskemaan asuntojen hoitovastiketta.

Rakennettava yhtiö on savuton.

HUOM! Asuntojen parvekkeissa on hieman kerroskohtaisia eroja, jotka eivät näy esitteen tai nettisivujen koontipohjissa. Materiaalipankissa on listaus parveketyypeistä.
 

Huoneistokohtaisilla sivuilla ei tällä hetkellä näy hoito- ja rahoitusvastikkeiden senttejä. Katso oikeat summat RS-hinnastosta.


Helsingin kaupungin omistukseen jäävä Hitas asunto on B80. 

Yhteydenotot kohteesta sähköpostitse.

 

Ota yhteyttä mikko.parviainen@hel.fi

Yksityiskohdat

  • Kaupunginosa Jätkäsaari

  • Rakennustyyppi Kerrostalo

  • Huoneet 1H+KT+ALK

  • Pinta-ala (m2) 39,0

  • Kerros 8

  • Myyntihinta 165 649,00€

  • Yhtiölainaosuus 85 954,00€

  • Velaton hinta 251 603,00€

  • Hoitovastike 337,00€

  • Rahoitusvastike 627,00€

  • Energialuokka A

  • Tontin omistus Vuokra, Helsingin kaupunki