Käskynhaltijantie 48 C51

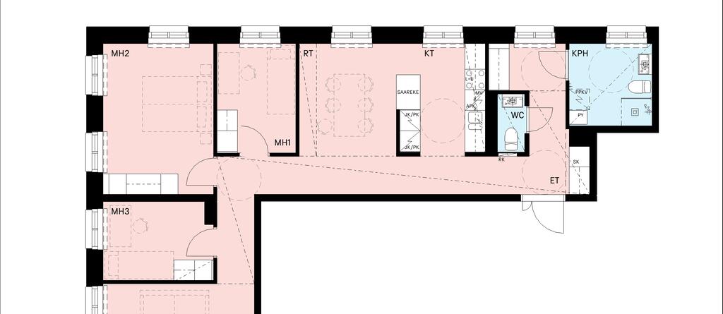
4H+KT 94,5 m2

(Ownership type) HASO

Oulunkylä, Käskynhaltijantie 48, 00620 Helsinki

Asunnon tiedot

Hakuaika on päättynyt.

Hakemukset ovat käsittelyssä ja tarjous asunnosta lähetetään noin kahden viikon sisällä pienimmälle järjestysnumerolle ko. asuntoa hakeneelle. Tarjoukset lähetetään sähköpostilla. Emme erikseen ilmoita sijoitusta jonossa. Hakemuksenne on voimassa kohteen rakentamisen ajan. Hakijalla tulee olla Aran myöntämä, käyttämätön asumisoikeusnumero, jota ilman emme voi käsitellä hakemuksia. Mikäli ette saa tarjousta hakemastanne asunnosta, jäätte edelleen jonoon asumisoikeusnumeroiden mukaisessa järjestyksessä.

Osa asunnoista on vapaana (näkyvät huoneistoluettelossa statuksella vapaa). Voit hakea vapaana olevaa asuntoa liitteissä olevalla jälkihakemuslomakkeella. Huom! Huoneistoa koskevien materiaalien valintojen määräaika umpeutui 31.3.2025.

Oulunkylään, pikaratikka 15 linjan varrelle valmistuu Haso Käskynhaltijantie 48, johon kuuluu kaksi erillistä kahden portaan asuinrakennusta osaksi alueelle tyypillistä pihapiiriä. Asumisoikeusasuntoja erilaisiin elämäntilanteisiin, yksiöistä neljän huoneen perheasuntoihin.

Puistojen ja metsien ympäröimä Oulunkylä sijaitsee aivan keskellä Helsinkiä, Suomen ensimmäisen rautatielinjan varrella. Vuonna 1873 Oulunkylä sai rautatiepysäkin, joka korotettiin asemaksi 1881. Oman aseman myötä syntyi Oulunkylään alueen ihmisten sanoin Helsingin ympäristön ensimmäinen huvilayhdyskunta. Vanhan huvilayhdyskunnan omaleimaista tunnelmaa on vieläkin jäljellä nykyisessä Oulunkylässä, joka oli itsenäinen kunta Helsingin suureen alueliitokseen 1946 asti.

Oulunkylä on monipuolisten palvelujen, kattavien ratikka- ja junayhteyksien sekä sujuvien pyörä- ja kävelyreittien kaupunginosa. Haso Käskynhaltijantie 48 edestä kulkee pikaratikkalinja, josta on suora reitti Oulunkylän asemalle. Samoin pyörätie kulkee suoraan talon edestä ja bussit eri puolille Helsinkiä. Läheisyydestä löytyy liikuntapuisto sekä Patolan metsä ja neva, arvokkaaksi luokiteltu luontokohde, jossa on jääkauden tasoittama silokallio ja jonka varrelta löytyy seikkailunnälkäisille jäänteitä sodanaikaisesta tykistötiestä. Ruoka- ja rautakauppaan, päiväkotiin ja Oulunkylän ala-asteelle on kävelymatka. Laajemmin käytössä on Oulunkylän keskustan palvelut.

Haso Käskynhaltijantie 48 sijaitsee Oulunkylässä Käskynhaltijantien varrella Kivipadontien risteystä vastapäätä. Kohteessa on 2 asuinrakennusta, joissa molemmissa kaksi hissillistä porrashuonetta. Sisäpihan puoleisissa porrashuoneissa on viisi kerrosta ja Käskynhaltijantien puoleisissa kuusi kerrosta sekä ullakko. Kadun varren porrashuoneisiin on esteetön sisäänkäynti Käskynhaltijantieltä ja sisäpihalta, pihasiivissä esteetön sisäänkäynti sisäpihalta molemmin puolin rakennusta. Asuntoja on yhteensä 78 kpl ja ne ovat kooltaan 33,0-95,5 m2. Suurimpaan osaan asunnoista kuuluu asuntokohtainen lasitettu parveke, joka on varustettavissa esteettömäksi terassilaudoituksella asukkaan toimesta. Maantasokerroksen asunnoissa B23, B24, C43, D64 on lasittamaton, esteetön pihaterassi. Pesula, kuivaushuoneet, kerhotila ja saunaosastot sekä ulkoilu- lastenvaunuvarastot sijaitsevat maantasokerroksessa. Jokaiselle asunnolle kuuluu yhtiön väestönsuojassa tai ullakolla sijaitseva lämmin irtaimistovarasto.

Taloyhtiön käyttöön on varattu 42 autopaikkaa, joista 18 on autokatospaikkoja, 24 kattamattomia maantasopaikkoja, 3 on mitoitettu liikuntaesteisille. Autokatoksissa sijaitsevat paikat on varustettu sähköauton latauspisteillä. Avopaikat varustetaan lämmityspistorasioilla.

Huoneistokohtaisilla sivuilla ei tällä hetkellä näy käyttövastikkeiden senttejä. Katso oikeat summat hinnastosta.

Rakennettava yhtiö on savuton.

Asuntojen arvioitu valmistumisaika on 5/2026-7/2026.

Asuinalue: Oulunkylä

Talotyyppi: Kerrostalo

Esteettömyys: Kaikkiin asuntoihin on esteetön kulku ja ne on suunniteltu esteettömiksi. Suurimpaan osaan asunnoista kuuluu asuntokohtainen lasitettu parveke, joka on varustettavissa esteettömäksi terassilaudoituksella asukkaan toimesta. Maantasokerroksen asunnoissa B23, B24, C43, D64 on lasittamaton, esteetön pihaterassi.

Savuttomuus: Kyllä

Ota yhteyttä:

Helsingin kaupunki
Asuntotuotanto
Laura Vilhonen
lauraelina.vilhonen@hel.fi
(09) 310 42061

Tietoa Hasosta:
Kotisi Stadissa - Haso - Helsingin Asumisoikeus Oy
Asumisoikeusasuminen jatkuu – Haso kehittyy ja kasvaa - Haso - Helsingin Asumisoikeus Oy

Yksityiskohdat

  • Kaupunginosa Oulunkylä

  • Huoneet 4H+KT

  • Pinta-ala (m2) 94,5

  • Kerros 3

  • Asumisoikeusmaksu 46 740,00€

  • Käyttövastike 1 393,00€