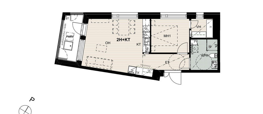
Verkkosaarenranta 16 B42

2H+KT 43,5 m2

(Ownership type) HASO

Sörnäinen, Verkkosaarenranta 16, 00580 Helsinki

Asunnon tiedot

Kohteessa vapaita asuntoja!

Vapaisiin asuntoihin voi hakea lähettämällä "Liitteet" - kohdassa olevan jälkihakemuslomakkeen osoitteeseen: gul.shoaib@hel.fi

 

Merelliseen ympäristöön ja loistavien palveluiden äärelle rakennettava Haso Verkkosaarenranta 16 kutsuu viihtymään.
 

Kohteessa on 2 asuinkerrostaloa, jokaisessa on hissillinen porrashuone.  Asuntoja on yhteensä 43 kpl. Jokaiseen asuntoon kuuluu asuntokohtainen esteettömyyden mahdollistava lasitettu parveke. Osassa asuntoja on huoneistokohtainen sauna. Kaikkiin asuntoihin on esteetön kulku ja ne on suunniteltu esteettömiksi. 

B-talon ylimmässä kerroksessa on kerhotila ja yhteissauna, jolla on myös kattoterassi vilvoittelua varten. Asuinrakennusten 1. kerroksiin sijoittuu yhteisiä tiloja mm. talopesula, 2 kuivaushuonetta, irtaimistovarastot sekä ulkoiluväline- ja lastenvaunuvarastot; osa irtaimistovarastoista on sijoitettu väestösuojaan. Kaikki yhteistilat on suunniteltu esteettömiksi.
 

Rakennettava kohde on savuton. Asunnoissa, parvekkeilla ja kohteen hallitsemissa yhteisissä tiloissa, kuten saunoissa, kerhotiloissa ym. ei saa tupakoida. Pihalla tupakointi on kielletty lukuun ottamatta erikseen mahdollisesti osoitettua tupakkapaikkaa.
 

A- talon maantasokerroksessa on liiketila, jonka toiminnaksi on suunniteltu ohjeistuksen mukaan kampaamotila.
 

Tontin pihakannen alaiseen autohalliin on osoitettu yhteensä 27 autopaikka, joista 1 on mitoitettu liikuntaesteisille. Autopaikat varustetaan lämmityspistorasioilla ja 10 kpl autopaikoista on valmiiksi varustettu sähköautolatauspistokkeilla. Molemmista taloista on esteetön yhteys autohalliin.
 

Asuntojen arvioitu valmistuminen on 10/2026 – 12/2026.

Huoneistokohtaisilla sivuilla ei tällä hetkellä näy käyttövastikkeiden senttejä. Katso oikeat summat hinnastosta.

Ota yhteyttä gul.shoaib@hel.fi

Yksityiskohdat

  • Kaupunginosa Sörnäinen

  • Rakennustyyppi Kerrostalo

  • Huoneet 2H+KT

  • Pinta-ala (m2) 43,5

  • Kerros 6

  • Asumisoikeusmaksu 38 482,00€

  • Käyttövastike 952,00€

  • Tontin omistus Vuokra, Helsingin kaupunki