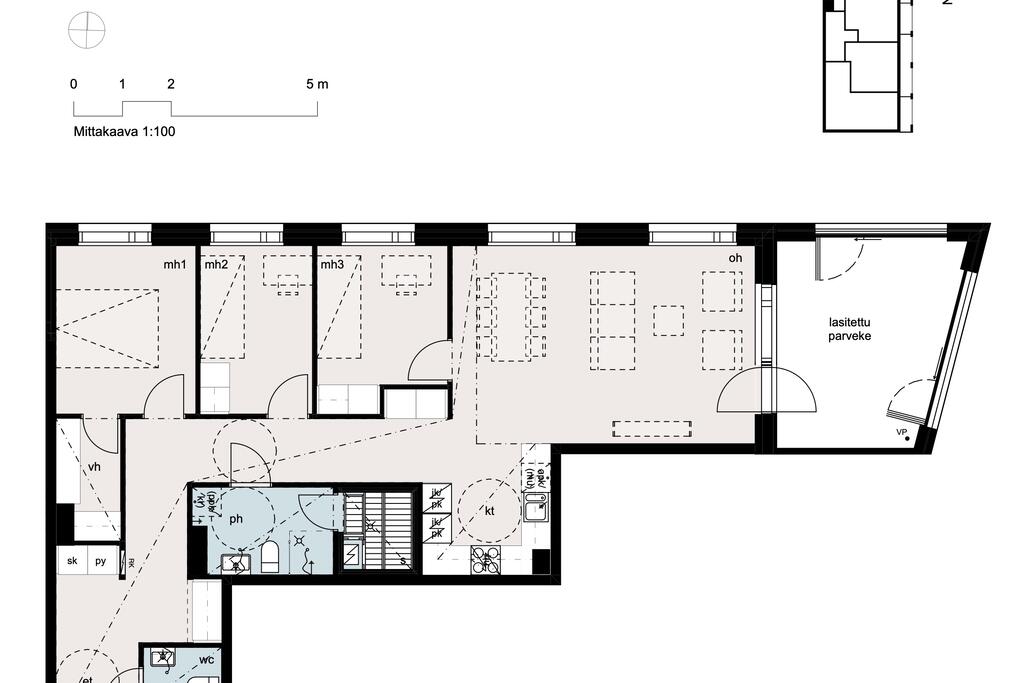
Nihdinlaituri 1 A7

4h+kt+s 95,0 m2

Luo jälkihakemus

Kohteen hakuaika päättyi 23.02.2026 12:00 mutta voit silti tehdä jälkihakemuksen.

(Ownership type) HASO

Sompasaari, Nihdinlaituri 1, 00540 Helsinki

Asunnon tiedot

Kohteen huoneistojako suoritettu 6.3.2026 ja tarjoukset lähetetty ensimmäisellä sijalla olleille. Kannattaa myös tarkastaa roskaposti kansio. Oman sijoituksen voi tarkastaa kirjautumalla nettisivuille. Jälkihakemuksia otetaan vastaan vapaisiin asuntoihin.

Hinnasto ja asuntojen hinnat päivitetty 5.3.2026. Materiaalivalinnat ja lisähintaiset materiaalivalinnat päivitetty 16.2.2026.

Kohteen hakuaika oli 9.-23.2.2026.  

 

Nihti on Helsingin uusimpia ja kiinnostavimpia merellisiä asuinalueita, jossa urbaani elämä ja upeat merelliset maisemat kohtaavat. Nihdinrantaan, aivan meren äärelle, rakennetaan Haso Nihdinlaituri 1.

Asuntovalikoima koostuu näppäristä yksiöistä aina viiden huoneen perheasuntoihin. Alueen julkisen liikenteen yhteytenä toimii tällä hetkellä raitiovaunulinja 13, jonka päätepysäkki sijaitsee aivan kohteen naapurissa.

Alueen palvelut keskittyvät Kalasataman metroaseman läheisyyteen, mistä löytyvät kaupallisten palveluiden lisäksi Kalasataman terveys- ja hyvinvointikeskus, koulu ja päiväkodit. Läheinen Hakaniemi täydentää alueen palvelutarjontaa.

Asuntoja on yhteensä 46 kpl. Jokaiselle asunnolle kuuluu oma lasitettu parveke. 

B-talon ylimmässä kerroksessa on kerhotila ja yhteissauna. Asuinrakennusten maantasokerrokseen sijoittuu yhteisiä tiloja mm. talopesula, kuivaushuone, irtaimistovarastot sekä ulkoiluväline- ja lastenvaunuvarastot. 


B-talon maantasokerroksessa on liiketila, joka on suunniteltu ravintolakäyttöön. Tontin pihakannen alaiseen autohalliin on osoitettu yhteensä 18 autopaikka, joista 1 on mitoitettu liikuntaesteisille ja yksi on varattu liiketilalle. Autopaikat ovat nimettyjä paikkoja ja isännöitsijä suorittaa niistä arvonnan ennen kohteen valmistumista mikäli paikan tarvitsijoita on enemmän kuin autopaikkoja. Autopaikka maksaa arviolta n. 60-80 €/kk.

Rakennettava yhtiö on savuton.

Huom. Sisäpihan puoli on katutasoon verrattuna kerrosta korkeampi joten 2. kerroksen asunnot ovat sisäpihan puolella maantasossa.


Asuntojen arvioitu valmistuminen on 7/2027 – 9/2027.

Yhteydenotot sähköpostitse:

Ota yhteyttä mikko.parviainen@hel.fi

Yksityiskohdat

  • Kaupunginosa Sompasaari

  • Rakennustyyppi Kerrostalo

  • Huoneet 4h+kt+s

  • Pinta-ala (m2) 95,0

  • Kerros 3

  • Asumisoikeusmaksu 66 578,00€

  • Käyttövastike 1 769,00€

  • Tontin omistus Vuokra, Helsingin kaupunki