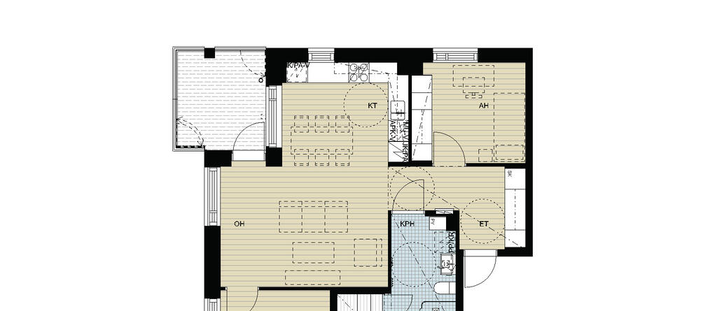
Myllymatkantie 11 C40

3H+KT+S 68,5 m2

(Ownership type) HASO

Myllypuro, Myllymatkantie 11, 00920 Helsinki

Asunnon tiedot

Kohteen myyjä on lomalla 17.7-18.8.2025. 

Loman aikana tulleet hakemukset käsitellään loman jälkeen.

Vapaita asuntoja voit hakea täyttämällä liitteenä olevan paperisen hakulomakkeen ja palauttamalla sen sähköpostitse mirja.peltola@hel.fi. 

Kohteen huoneistojako suoritettu 4.10. kello 9.15. 

Materiaalivalintojen aikataulu on umpeutunut. Löydät myymättömien asuntojen materiaalit alla olevan Materiaalit ja muutostyöohje linkin takaa.

Helsingin Asumisoikeus Oy Myllymatkantie 11 tarjoaa uusia koteja lähellä Myllypuron runsaita palveluita, kattavia harrastusmahdollisuuksia ja toimivia kulkuyhteyksiä – metro vie keskustaan noin vartissa.

Myllypuro on itäisen Helsingin monipuolinen kaupunginosa, jossa palvelut, harrastusmahdollisuudet ja liikenneyhteydet ovat mukavasti lähellä ja valmiina. Kävelymatkan päästä löytyvät mm. metroasema, raidejokerin pysäkki, uudistettu Myllypuron Ostari liikkeineen ja palveluineen, terveysasema sekä päiväkodit ja peruskoulut. 

Kohteessa on 73 asumisoikeusasuntoa, jotka ovat kooltaan 33,0–112,0 m². Kaikki asunnot ovat esteettömiä ja asunnoissa on lasitettu parveke, joka on varustettavissa esteettömäksi terassilaudoituksella asukkaan toimesta. Jokaiseen asuntoon kuuluu yhtiön kellaritiloissa sijaitseva lämmin irtaimistovarasto. Lisäksi osassa asuntoja on huoneistokohtainen sauna. 

Tarkemmat piirustukset

Materiaalit ja muutostyöohje

Asuntojen arvioitu valmistumisaika on 1/2026–3/2026.

Huoneistokohtaisilla sivuilla ei tällä hetkellä näy käyttövastikkeiden senttejä. Katso oikeat summat hinnastosta.

Ota yhteyttä mirja.peltola@hel.fi

Yksityiskohdat

  • Kaupunginosa Myllypuro

  • Rakennustyyppi Kerrostalo

  • Huoneet 3H+KT+S

  • Pinta-ala (m2) 68,5

  • Kerros 3

  • Asumisoikeusmaksu 43 941,00€

  • Käyttövastike 1 134,00€

  • Accessibility Kohde on esteetön

  • Tontin omistus Vuokra, Helsingin kaupunki