Maunulantie 25 E79

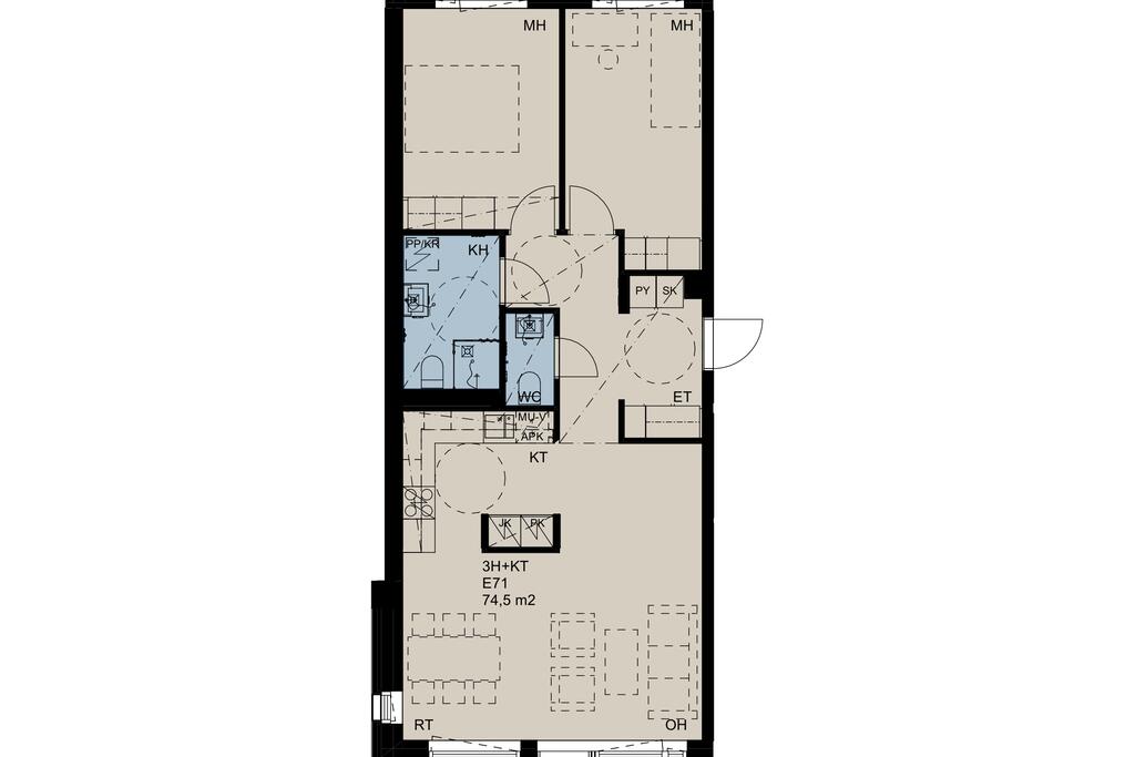
3H+KT 74,5 m2

(Ownership type) HASO

Maunula, Maunulantie 25, 00630 Helsinki

Asunnon tiedot

Hakuaika on päättynyt.

Hakemukset ovat käsittelyssä ja tarjous asunnosta lähetetään noin kahden viikon sisällä pienimmälle järjestysnumerolle ko. asuntoa hakeneelle. Tarjoukset lähetetään sähköpostilla. Emme erikseen ilmoita sijoitusta jonossa. Hakemuksenne on voimassa kohteen rakentamisen ajan. Hakijalla tulee olla Aran myöntämä, käyttämätön asumisoikeusnumero, jota ilman emme voi käsitellä hakemuksia. Mikäli ette saa tarjousta hakemastanne asunnosta, jäätte edelleen jonoon asumisoikeusnumeroiden mukaisessa järjestyksessä.

Osa asunnoista on vapaana (näkyvät huoneistoluettelossa statuksella vapaa). Voit hakea vapaana olevaa asuntoa liitteissä olevalla jälkihakemuslomakkeella. Lähetä jälkihakemus sähköpostilla osoitteeseen lauraelina.vilhonen@hel.fi.

Osa materiaalivalinta-aikataulusta on jo umpeutunut. Myymättömiin huoneistoihin arkkitehti on tehnyt materiaalivalinnat.

Materiaalivalinta-aikataulu on seuraava:
A-rappu umpeutunut
E-rappu 1krs umpeutunut
E-rappu 2krs 27.3.2026
E-rappu 3krs 2.4.2026
E-rappu 4krs 10.4.2026
F-rappu 17.4.2026
B-rappu 13.5.2026
C-rappu 12.6.2026
D-rappu 3.7.2026

Maunula on loistava asuinalue ihmiselle, joka arvostaa hyviä liikenneyhteyksiä, kyläyhteisömäistä asuinaluetta ja metsäisen luonnon rauhaa. Haso Maunulantie 25:een valmistuu laaja kirjo erikokoisia asuntoja yksiöistä viiden huoneen perheasuntoihin. 

Puistojen ja metsien ympäröimä Maunulan alue liitettiin Helsinkiin suuressa alueliitoksessa 1946. Maunulaksi alue nimettiin jo vuonna 1945, kun kaupunki päätti rakennuttaa uuden asuinalueen sotien jälkeistä asuntopulaa helpottamaan. Tuolloin käynnistyi myös asemakaavoitus liitosalueilla ja Maunulankin ensimmäinen asemakaava laadittiin. Maunulan asuntoalue rakennettiin pitkälti 1950-luvulla. Saman vuosikymmen aikana rakennettiin alueelle myös Maunulan päiväkoti, Maunulan ala-aste ja silloinen oppikoulu, nykyinen Maunulan yhteiskoulu. Maunulasta katsottuna Pirkkolantien toisella puolella sijaitsevat Pirkkolan alueen viehättävät ruotsalaistalot, joita alettiin rakentaa jo 1940-luvun alussa.

Maunulanpuisto, joka on osa keskuspuistoa, sijaitsee aivan Maunulan kyljessä. Keskuspuisto on yli kymmenen kilometriä pitkä ja kymmenen hehtaarin laajuinen alue keskellä Helsinkiä. Tällä vehreällä, osin suojellulla ja luonnonmetsäisellä alueella on mahdollisuus oleskella omissa ajatuksissaan, seurailla lintuja, harrastaa patikointia tai vaikka pyöräillä töihin, aistia aamun raikkaudesta tai illan rauhasta.

Maunula on monipuolisten palvelujen, kattavien ratikka- ja bussiyhteyksien sekä sujuvien pyörä- ja kävelyreittien alue. Haso Maunulantie 25:den läheisyydestä kulkee pikaratikkalinja, josta on suora reitti Espooseen ja Itä-Helsinkiin. Ruokakauppaan, apteekkiin, Asukastalo Saunabaariin ja Maunula-talolle on kävelymatka. Maunulan liikuntahalli sijaitsee ala-asteen vieressä ja Pirkkolantien toisella puolella on upea Pirkkolan liikuntapuisto sekä lasten hiekkapohjainen uimalammikko Plotti. 

Haso Maunulantie 25 sijaitsee Maunulassa kulttuurihistoriallisesti arvokkaalla alueella. Asuinrakennukset ovat 4,5-5 kerrosta korkeita Asumisoikeus-asuinkerrostaloja. Hissillisiä porrashuoneita on yhteensä 6. Rakennuksiin on esteetön sisäänkäynti kadulta ja/tai sisäpihalta. Asuntoja on yhtiössä yhteensä 97 kpl ja ne ovat kooltaan 36,5-112,5 m2. Jokaiseen asuntoon kuuluu asuntokohtainen lasitettu parveke, joka on varustettavissa esteettömäksi terassilaudoituksella asukkaan toimesta. Osassa asuntoja on huoneistokohtainen sauna. Jokaiselle asunnolle kuuluu yhtiön hallinnassa oleva alimmassa kerroksessa sijaitseva lämmin irtaimistovarasto. Kaikki asunnot on suunniteltu esteettömiksi ja niihin on autohalleista ja tontin rajalta esteetön kulku. Kellaritiloissa tai maantasokerroksessa sijaitsevat pesula, kuivaushuoneet, irtaimistovarastot (normaaliajan käyttö irtaimistovarasto), väestönsuoja, lastenvaunuvarastot, ulkoiluvälinevarastot, kerhotilat ja talosaunat.

Taloyhtiön autopaikat, 60 kpl, sijaitsevat jaettuna tontin omaan sekä viereisen tontin yhteiskäyttöiseen kylmään pysäköintilaitokseen. Autopaikoista 2 on mitoitettu liikuntaesteisille ja 22 kpl toteutetaan sähköauton latauspaikkoina.

Rakennettava yhtiö on savuton.

Asuntojen arvioitu valmistumisaika on 8/2027–10/2027.

Asuinalue: Maunula

Talotyyppi: Kerrostalo

Esteettömyys: Kaikki asunnot on suunniteltu esteettömiksi ja niihin on autohalleista ja tontin rajalta esteetön kulku. Jokaiseen asuntoon kuuluu asuntokohtainen lasitettu parveke, joka on varustettavissa esteettömäksi terassilaudoituksella asukkaan toimesta.

Savuttomuus: Kyllä

Ota yhteyttä:

Helsingin kaupunki
Asuntotuotanto
Laura Vilhonen
lauraelina.vilhonen@hel.fi
(09) 310 42061

Tietoa Hasosta:
Kotisi Stadissa - Haso - Helsingin Asumisoikeus Oy
Asumisoikeusasuminen jatkuu – Haso kehittyy ja kasvaa - Haso - Helsingin Asumisoikeus Oy

Huoneistokohtaisilla sivuilla ei tällä hetkellä näy käyttövastikkeiden senttejä. Katso oikeat summat hinnastosta.

Yksityiskohdat

  • Kaupunginosa Maunula

  • Huoneet 3H+KT

  • Pinta-ala (m2) 74,5

  • Kerros 4

  • Asumisoikeusmaksu 43 024,00€

  • Käyttövastike 1 281,00€